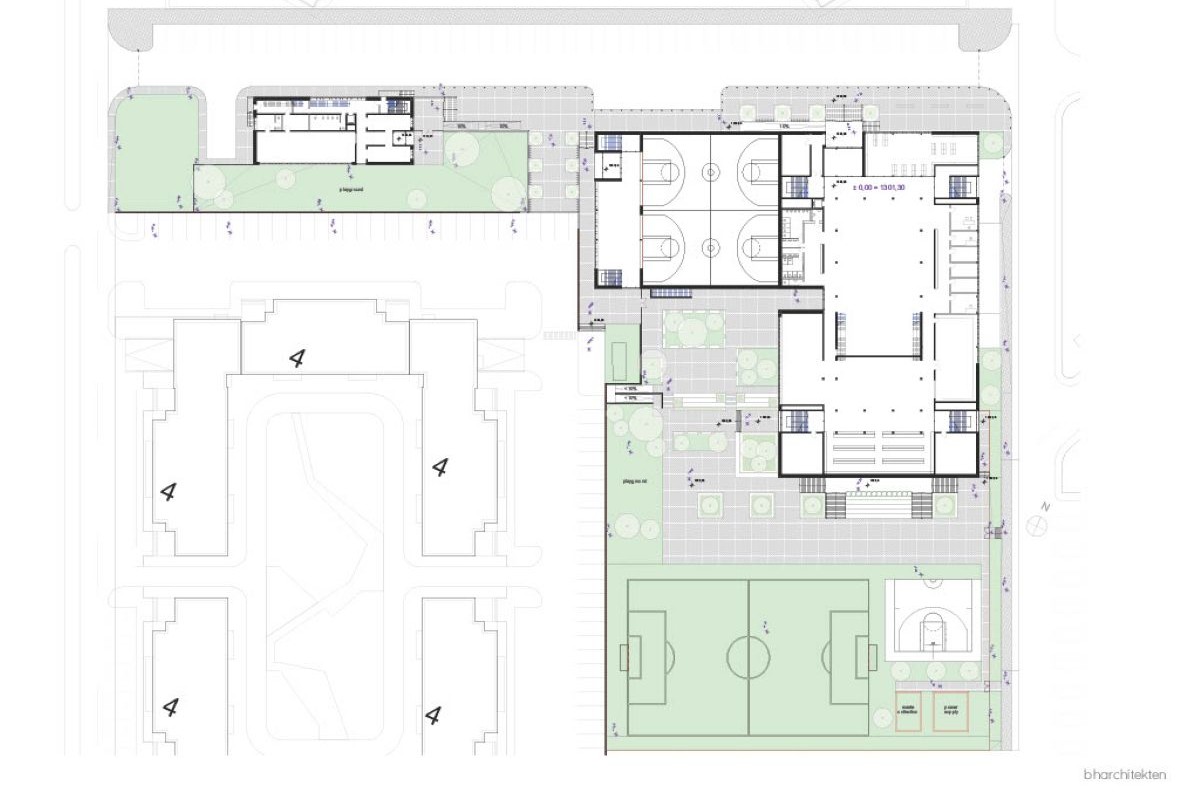
Auf einem beengten Grundstück in der mongolischen Hauptstadt sollte eine Gesamtschule für ca. 1.200 Schüler, ein Kindergarten sowie eine 2-fach Sporthalle mit Fitness-Studio errichtet werden. Das Schulgebäude ist in einem kompakten Baukörper situiert, der die leichte Hanglage optimal nutzt. Im Inneren sind die Bereiche nach Unterricht, Aufenthalt, Mensa etc. gegliedert. Die Schule bietet flexible Raumkonzepte, die sowohl individualisiertes Lernen als auch kooperative Arbeitsformen unterstützen. Differenzierungsräume sind in unmittelbarer Nähe zu den Klassenräumen angeordnet und ermöglichen eine schnelle Anpassung an unterschiedliche Lernniveaus und Bedürfnisse, das individuelle Lernen wird gefördert. Das Angebot wird durch eine 2-fach Sporthalle mit angegliedertem Fitness-Studio mit unmittelbarem Zugang vom Schulgebäude ergänzt. Der Kindergarten erhält ein eigenes Gebäude mit Freianlagen. Die Schule wurde im September 2025 eröffnet.






